Description
Situé à l’angle prestigieux des rues De Haas et Pinkas, ce projet incarne le luxe architectural moderne au cœur du Nouveau Nord de Tel-Aviv. Bordé par les jardins Nuri et Louis Marshall, l’immeuble offre une vue urbaine dégagée et verdoyante, tout en étant à quelques pas de l’avenue Ibn Gabirol et du Parc HaYarkon.
Une Signature Architecturale : Gal Marom Architects
Conçu par le célèbre cabinet Gal Marom Architects, le bâtiment se distingue par sa façade unique : une moucharabieh moderne blanche. Cette enveloppe élégante ne se contente pas d’être esthétique ; elle sert de protection solaire intelligente (notamment pour la façade sud), créant des jeux de lumière et une élégance intemporelle qui font de cette résidence un véritable repère urbain.
Flexibilité Totale : L’Innovation des « Mamak »
L’un des atouts majeurs de ce projet est l’utilisation de Mamak (espaces protégés à l’étage) au lieu des Mamad (chambres fortes intérieures).
- Avantage : Cela libère l’espace intérieur de l’appartement de toute contrainte structurelle.
- Résultat : Vous bénéficiez d’une flexibilité de conception maximale pour transformer votre intérieur en un espace totalement ouvert ou configurer les pièces selon vos besoins exacts, sans l’aspect « fermé » d’une chambre-forte classique.
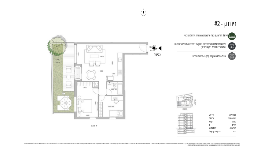
Détails de l’Appartement de Jardin (Rez-de-chaussée)
Idéal pour ceux qui recherchent l’intimité d’une villa avec les avantages d’un immeuble boutique de standing.
| Caractéristique | Détails de l’unité |
| Type de bien | Appartement de jardin (conçu comme un 3 pièces) |
| Surface Intérieure | 74 m² |
| Surface Jardin / Terrasse | 30 m² |
| Orientations | Sud et Ouest (Luminosité optimale) |
| Étage | Rez-de-chaussée (calme, vue arrière/arrière-cour) |
| Parking | 1 place (système de parking souterrain automatisé) |
| Prix | 5 350 000 ₪ |
Pourquoi investir dans ce projet neuf à Tel Aviv
- Emplacement « Triple A » : À proximité immédiate de la Place Milano et d’Ibn Gabirol. Vous profitez des meilleurs cafés et restaurants de la ville tout en vivant dans une rue calme.
- Secteur Éducatif d’Élite : Le projet se trouve dans la zone de sectorisation de l’école réputée Yehuda HaMaccabi, un critère de choix pour les familles.
- Qualité de Construction : Le groupe Tsalach Rothschild, fort de 40 ans d’expérience, garantit une solidité financière exemplaire et un respect rigoureux des délais de livraison.
- Vie de Quartier Idéale : Entre les parcs pour enfants au pied de l’immeuble et la proximité du Parc HaYarkon pour les loisirs sportifs, c’est l’emplacement le plus équilibré de Tel-Aviv.
Résumé Technique du Projet
- Bâtiment : Immeuble boutique de 8 étages.
- Nombre d’unités : Seulement 38 appartements pour une intimité préservée.
- Statut : En cours de construction (En exécution).
- Prestations : Hall d’entrée luxueux, finitions haut de gamme, parkings souterrains sécurisés.
- Prix: 5 350 000 ₪
- + Frais d’agence






